Продается 3-х комн. квартира, 66.1 кв.м., 7/9 эт

Обзор
Стоимость
4 580 000
РемонтТребуется ремонт
БалконЛоджия застекленная
Статус Недвижимости АвитоКвартира
Тип парковкиОткрытая во дворе
Способ связи avitoПо телефону и в сообщениях
Комнат в квартире3
Площадь, кв.м.66.1
Жилая площадь40.7
Площадь кухни, кв.м.8.6
Этаж7
Этажность9
Материал стенПанельный
Адрес
Населенный пунктКалуга
Район городаПлощадь Победы
Улицаулица Чижевского
Номер дома25
В избранное Продаётся 3-комнатная квартира

ПРЯМОЙ ПРЕДСТАВИТЕЛЬ СОБСТВЕННИКА, альтернативная продажа.
Трёхкомнатная квартира с изолированными комнатами в районе Площади Победы.
Практически вся мебель и техника остаётся. Сан.узел раздельный, средний этаж.
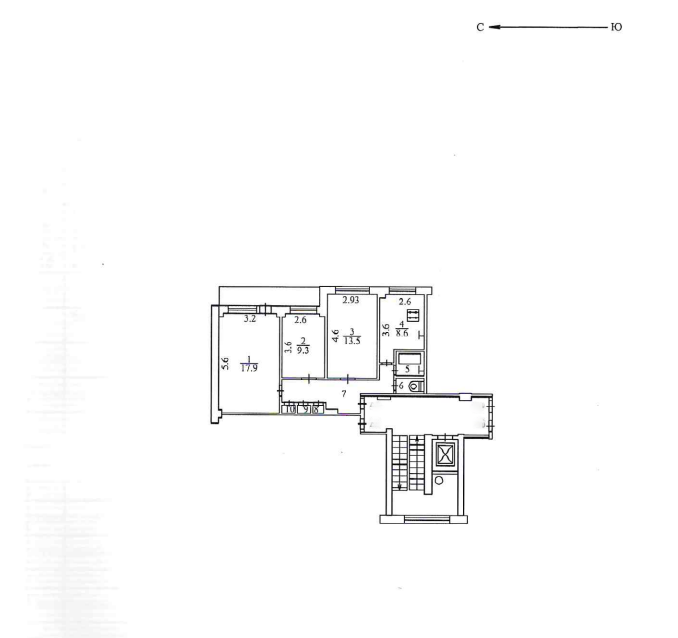
Панельный дом 1982 года. Общая площадь 63,6 кв.м (без учёта лоджии), кухня 8,6 кв.м, комнаты 17,9 + 13,5 + 9,3 кв.м, лоджия 5 кв.м, прихожая с коридором 9,9 кв.м, ванная 2 кв.м, туалет 1,2 кв.м.
Два взрослых собственника с 2010 года. Без обременений. Сделка с участием органов опеки.
Улица Чижевского д.25. 

Расположение

Важно! На карте не всегда указано точное местоположение. Более точную информацию можно узнать у менеджера, разместившего объект